Tikipunga

powered by Open2view.com
SOLD

Northland
5
2
N/A
182sqm
618sqm
Northland
proudly marketed by
L J Hooker - Whangarei -
The Kiwi Dream
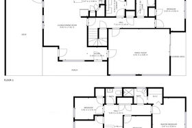
Do you dream of living at the beach? Have I got the place for you? Conveniently located in the sought after community of One Tree Point, this family-sized 1980's home is set on a flat, beautifully landscaped 618m2 section. The mature palm trees on the boundary give you the feeling you have stepped into your own piece of coastal paradise. The home comprises two-levels, upstairs offering the master bedroom with walk-in-robe, three single bedrooms each with a wardrobe plus an extra storage cupboard, separate toilet, bathroom, and linen cupboard with a hot water cylinder. Downstairs has one double bedroom, bathroom with shower over the bath and vanity, separate toilet, laundry, linen cupboard with a second hot water cylinder. There is a large separate lounge and an open plan kitchen/dining/living area which opens out onto the private deck, creating the perfect space for soaking up the sun and entertaining family and friends. The home is heated by a Panasonic heat pump and has neutral colours throughout. The large carport off the back of the home provides good undercover parking, and there's plenty of room to park a boat, motor home, and other toys. Two garden sheds provide outside storage options. 350m from the front gate you will find yourself standing at the water's edge of the family-friendly harbourside beach - perfect for swimming, kayaking, paddleboarding, walking the dog and other fun activities. Handy to the local yacht club, One Tree Point Boat Ramp, general store, primary school, daycare, Marsden Cove Marina and boat ramp and fishing grounds. Take a short drive to the Ruakaka Shopping Centre, Bream Bay Collage, and Ruakaka's spectacular surf beaches. Don't miss your opportunity to move into this rapidly developing harbourside community for summer. 'Set Date of Sale' closes 4pm 7th October (unless sold prior) To arrange to view this property call Lynette Matthews or see you at the open home. lynette.matthews@ljhooker.co.nz 021 272 2695
Question
Please leave this field blank:
Upload by Don Waterhouse
Northland