Tikipunga

powered by Open2view.com
SOLD

Northland
3
1
N/A
180sqm
1020sqm
Northland
proudly marketed by
L J Hooker - Whangarei -
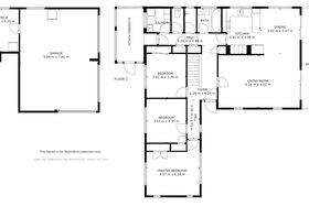
You won't be disappointed in the size of this 1970's home.
You won't be disappointed in the size of this 1970's home. For a virtual walk-through of the home click on this link or copy and paste to your browser: https://my.matterport.com/show/?m=6ivWADQnrP8 The exterior is solid brick, with aluminium joinery, tile roof, internal stairs to a large double garage, plus workshop space: three double bedrooms, separate shower room, bathroom, toilet and laundry. A modernized kitchen open plan dining, separate lounge, both dining and lounge have sliders off onto a deck with impressive views to pastures green. The large 1020m� section is nestled down a ROW with an elevated presence. Security has been at the forefront as it is fenced and gated with parking for the boat, the caravan and room for other toys. A real winner for the family. CV $504,000 - what would you offer? For a virtual walk-through of the home click on this link: https://my.matterport.com/show/?m=6ivWADQnrP8 Contact me for more information. Kerry.milne@ljhooker.co.nz 021 451 015
Question
Please leave this field blank:
Upload by Don Waterhouse
Northland