Tikipunga

powered by Open2view.com
SOLD

Northland
3
1
N/A
160sqm
688sqm
Northland
Auction
Wednesday 4th March - 4:00PM
proudly marketed by
L J Hooker - Whangarei -
Your Chance to Enhance!
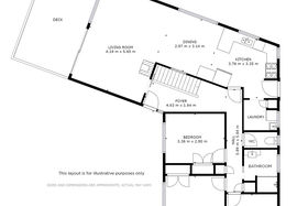
Finish what the current owner has started and here is a home that will be the envy of your friends. Built in the 1960s when houses were crafted, not just built, this home is perfectly positioned to take in a vista of city, Parihaka and the Western Hills and from another window Mt Manaia. The concrete terrace at the front is just great for relaxing at the end of the day and extends from the open plan lounge/dining area. At the rear of the home is a fenced backyard - great for children or pets. The kitchen is a "Masterchef" special with large double oven, five-burner gas hob and dish drawers. Enjoy the comfort in winter of a wood firebox situated in the lounge area. Walking through to the hallway, an Internal staircase leads down to a double garage. The present owner has added her touches to this home over the years but now finds a need to downsize and leaves the finishing to the next occupant. This is your chance to enhance... Contact Heather for an appointment to view this home. heather.thorburn@ljhooker.co.nz 0274 965 257
Question
Please leave this field blank:
Upload by Don Waterhouse
Northland