Tikipunga

powered by Open2view.com
SOLD

Northland
3
2
N/A
N/Asqm
838sqm
Northland
proudly marketed by
L J Hooker - Whangarei -
Oasis For The Soul
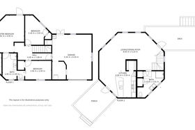
Enjoy the all-day vista of the Whangarei Harbour from this uniquely designed home. Do you like different? Alternatively, a touch of paradise? Then you will be taken with this property, as the exterior reflects a lighthouse image, with a quirky turret on the top. The upper floor design is an open plan dining/lounge; the kitchen has all to offer along with a walk-in scullery. Imagine stepping out of the kitchen with your breakfast onto a covered deck and watch the morning activity on the water or, cruise around to the other deck off the lounge. There are options galore. An easy set of steps takes you to the second level where there are three bedrooms; the main bedroom is generous in size with ensuite bathroom and walk-in wardrobe. The landscaped grounds include rockery formations, raised gardens, and established trees to create a private oasis. Take a stroll around the garden and enjoy the option of sitting in spots designed for this garden. Internal access from the garage, along with two entrances to this property provides excellent off-street parking. There are only nine houses in the cul de sac.
Question
Please leave this field blank:
Upload by Don Waterhouse
Northland